平内周辺地図





























- 賃料
- 7.9万円
- 種別
- 賃貸戸建
- 間取
- 3LDK
- 定期借家契約
- 2年
- 敷金
- 2ヶ月
- 仲介手数料
- 1ヶ月
- 礼金
- 1ヶ月
-
- 所在地
- 鹿児島県熊毛郡屋久島町平内
- 交通
- バス 徒歩1分(海中温泉バス停)
空港より車で35分 尾之間エーコープまで車で10分
物件詳細
| 築年月 | 2010/8 | 新築/中古 | 中古 |
|---|---|---|---|
| 建物面積 | 73.72m² | 建物面積(坪) | 22.3坪 |
| バルコニー・ベランダ | 14.01㎡/4.23坪 | 建物・部屋向き | 南西 |
| 建物階数 | 地上2階 | 部屋階数 | |
| 部屋/区画番号 | 総戸/区画数 | 1 | |
| 建物構造 | 木造/スレート瓦葺き | ||
| 敷地全体面積 | 437.63m² | 敷地全体面積(坪) | 132坪 |
| 建物備考 | 建物面積 1階60.82㎡+2階12.9㎡ 計73.72㎡/22.3坪 | ||
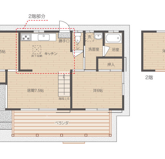
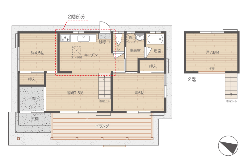
| 間取内容 | 間取図参照 洋室 4.5畳 洋室 6畳 洋室 7.8畳 | ||
| 住宅保険 | 有 | ||
| 保険・金銭面・修繕費備考 | 入居時預りハウスクリーニング代90000円+税(借主負担) 家財保険は借主負担 |
||
| 駐車場 | 無料 | 取引態様 | 媒介 |
| 引渡/入居時期 | 現況 | ||
| 地目 | 宅地 | 用途地域 | 無指定 |
| 都市計画 | 都市計画区域外 | 地勢 | 平坦 |
| 接道状況 | 一方 | ||
| 接道方向1 | 北東 | 接道間口1 | 20.5m |
| 接道種別1 | 舗装公道 | 接道幅員1 | 7m |
| 土地権利 | 所有権 | 国土法届出 | 不要 |
| 周辺環境 |
八幡小学校 岳南中学校 周辺には海中温泉がある 名所マップを開く |
||
| 設備・条件 | 電気 プロパンガス 水道 浄化槽 排水 ペット不可 禁煙 ガスコンロ システムキッチン 給湯 独立洗面台 シャワー ユニットバス バス・トイレ別 温水洗浄便座 エアコン 室内洗濯機置き場 地デジ対応 駐車場有 駐輪場 バルコニー・ベランダ フローリング 照明器具付 灯油風呂ですので灯油代は借主負担。備え付けのベランダについている取り外し式の照明器具器具、ウォシュレット、エアコン、ポスト、サービス品で使用可ですが、故障などの場合は貸主は直しません。窓の高さや台所の換気扇など設備の位置の高さは標準的な住宅より高めの位置になっています。庭の草刈りや庭木の剪定は借主負担とします。(退出時含む)、合併浄化槽の為流しには油などを流さないでください。備品の取り扱い説明書は保管してください。雨戸の戸袋の扉は閉めてください。 |
||
| 物件番号 | HR-190057 | ||
| 自社物 | 状態 | 空無 | |
※物件掲載内容と現況に相違がある場合は現況を優先といたします。※こちらの物件の資料請求はページ下段のフォームよりお問い合せ下さい。
お電話からのお問い合わせ
営業時間 9:00~17:00 定休日: 日曜・祭日
宅地建物取引業者免許
:国土交通大臣(8)第4409号
:国土交通大臣(8)第4409号
賃貸住宅管理業者登録
:国土交通大臣(1)第7584号
:国土交通大臣(1)第7584号




























