小島周辺地図
- 価格
- 3,000万円
- 種別
- 売建物
- 間取
- 8LDK
- 坪単価
- 2.8838万円
-
- 所在地
- 鹿児島県熊毛郡屋久島町小島
- 交通
- バス 徒歩6分(被岸野バス停)
空港より車で30分
物件詳細
| 築年月 | 1993 | 新築/中古 | 中古 |
|---|---|---|---|
| 建物面積 | 604.92m² | 建物面積(坪) | 182.98坪 |
| バルコニー・ベランダ | 建物・部屋向き | 南 | |
| 建物階数 | 地上2階 | 部屋階数 | |
| 部屋/区画番号 | 総戸/区画数 | 1 | |
| 建物構造 | RC | ||
| 敷地全体面積 | 3439m² | 敷地全体面積(坪) | 1040.29坪 |
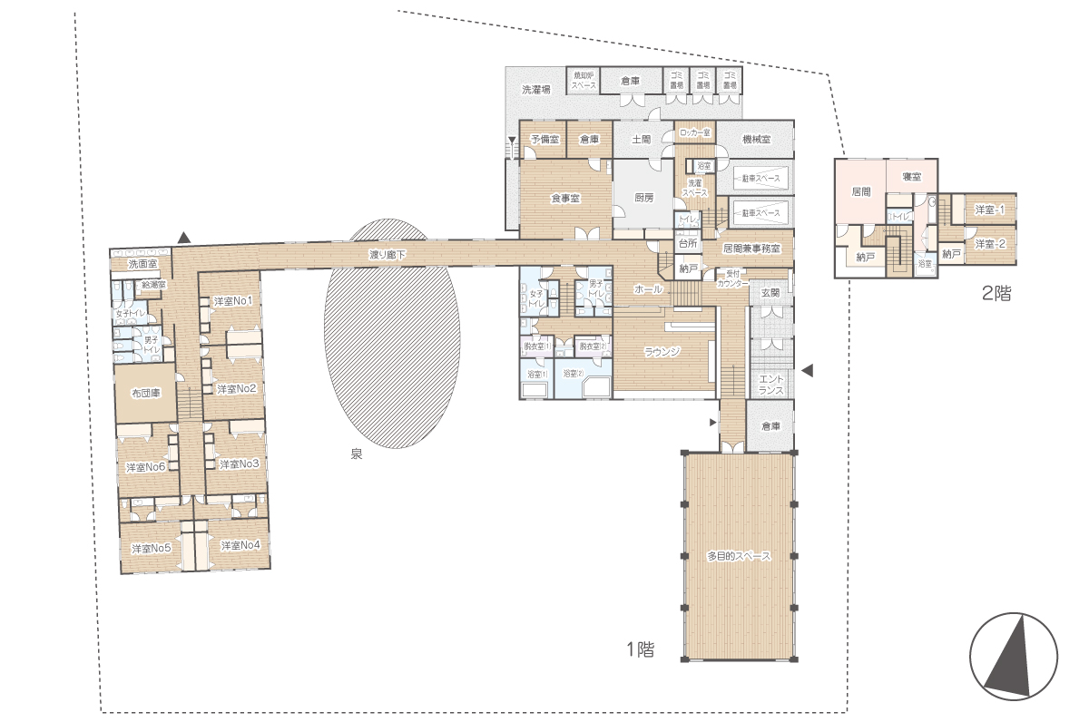
| 建物備考 | 敷地面積/2373㎡/717.8坪+692㎡/209.3坪+374㎡/113.1 合計3439㎡/1040.29坪 建物面積/1階512.52㎡/155.03坪 2階92.4㎡/27.95坪 合計604.92㎡/182.98坪 渡り廊下で3軒の建物がつながっています。 渡り廊下続きの多目的スペース1R、鉄筋コンクリートスレート葺き136.9/41.4坪、木造スレート葺き287.53㎡/86.97坪 6R含む |
||
| 間取内容 | 間取図参照 | ||
| 駐車場 | 倉庫、車庫付 | 取引態様 | 仲介 |
| 引渡/入居時期 | 相談 | 現況 | 居住中 |
| 地目 | 宅地 | 用途地域 | 無指定 |
| 都市計画 | 都市計画区域外 | 地勢 | 平坦 |
| 接道状況 | 角地 | ||
| 接道方向1 | 東 | 接道間口1 | 50.1m |
| 接道種別1 | 舗装公道 | 接道幅員1 | 3m |
| 接道方向2 | 北 | 接道間口2 | 57m |
| 接道種別2 | 未舗装公道 | 接道幅員2 | 3m |
| 土地権利 | 所有権 | 国土法届出 | 不要 |
| 接道備考 | 北側の道は現況道無 | ||
| 周辺環境 |
八幡小学校 岳南中学校 イタリア人宣教師シドニッチ上陸場所やサンタマリア教会がある南部の温暖な小集落。小学校、幼稚園、中学校にも近く、好い釣り場が多くある。 名所マップを開く |
||
| 設備・条件 | 電気 プロパンガス 井戸 浄化槽 排水 事務所可 ペット可能 ガスコンロ 給湯 独立洗面台 バス・トイレ別 室内洗濯機置き場 駐車場有 フローリング | ||
| 物件番号 | KJ-190013 | ||
| 自社物 | 状態 | 売止 | |
| 特記事項 | 土砂災害区域内 | ||
※物件掲載内容と現況に相違がある場合は現況を優先といたします。※こちらの物件の資料請求はページ下段のフォームよりお問い合せ下さい。
お電話からのお問い合わせ
営業時間 9:00~17:00 定休日: 日曜・祭日
宅地建物取引業者免許
:国土交通大臣(8)第4409号
:国土交通大臣(8)第4409号
賃貸住宅管理業者登録
:国土交通大臣(1)第7584号
:国土交通大臣(1)第7584号









































