安房周辺地図



















- 賃料
- 5万円
- 種別
- 賃貸店舗
- 間取
- 1LDK
- 定期借家契約
- 2年
- 敷金
- 2ヶ月
- 仲介手数料
- 1ヶ月
-
- 所在地
- 鹿児島県熊毛郡屋久島町安房
- 交通
- バス 徒歩2分(警察署前バス停)
空港より車で12分 安房港まで車で3分
物件詳細
| 築年月 | 新築/中古 | 中古 | |
|---|---|---|---|
| 建物面積 | 57.99m² | 建物面積(坪) | 17.5坪 |
| バルコニー・ベランダ | 建物・部屋向き | 東 | |
| 建物階数 | 地上1階 | 部屋階数 | |
| 部屋/区画番号 | 総戸/区画数 | 1 | |
| 建物構造 | 木造/スレート瓦葺き | ||
| 敷地全体面積 | 130m² | 敷地全体面積(坪) | 39坪 |
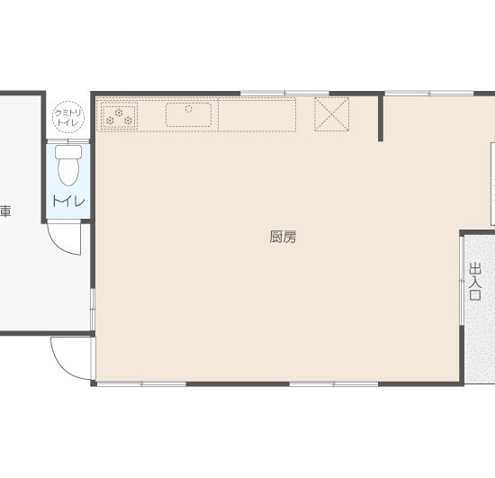
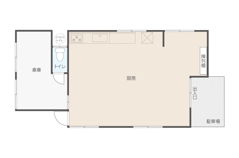
| 間取内容 | 間取図参照 洋室 7畳 | ||
| 住宅保険 | 有 | ||
| 駐車場 | 無料 | 取引態様 | 媒介 |
| 引渡/入居時期 | 即時 | 現況 | 入居中 |
| 地目 | 宅地 | 用途地域 | 無指定 |
| 都市計画 | 非線引き区域 | 地勢 | 平坦 |
| 接道状況 | 一方 | ||
| 接道方向1 | 西 | 接道間口1 | 7m |
| 接道種別1 | 公道 | 接道幅員1 | 7.5m |
| 土地権利 | 所有権 | 国土法届出 | 不要 |
| 周辺環境 |
安房小学校 安房中学校 周辺にはスーパー、港、小学校がある。 名所マップを開く |
||
| 設備・条件 | 電気 プロパンガス 水道 排水 ペット可能 室内洗濯機置き場 駐車場有 風呂、流し台、ガスコンロ、グリストラップなし。トイレはくみ取り。 |
||
| 物件番号 | FA-200045 | ||
| 自社物 | 状態 | 空無 | |
| 特記事項 | 造作の場合は退出時元に戻してください。 | ||
※物件掲載内容と現況に相違がある場合は現況を優先といたします。※こちらの物件の資料請求はページ下段のフォームよりお問い合せ下さい。
お電話からのお問い合わせ
営業時間 9:00~17:00 定休日: 日曜・祭日
宅地建物取引業者免許
:国土交通大臣(8)第4409号
:国土交通大臣(8)第4409号
賃貸住宅管理業者登録
:国土交通大臣(1)第7584号
:国土交通大臣(1)第7584号


















