小瀬田周辺地図















- 賃料
- 5.72万円
- 種別
- 賃貸店舗
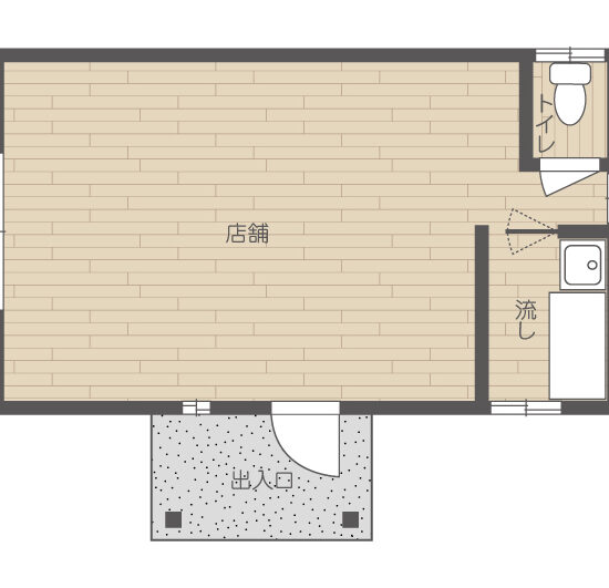
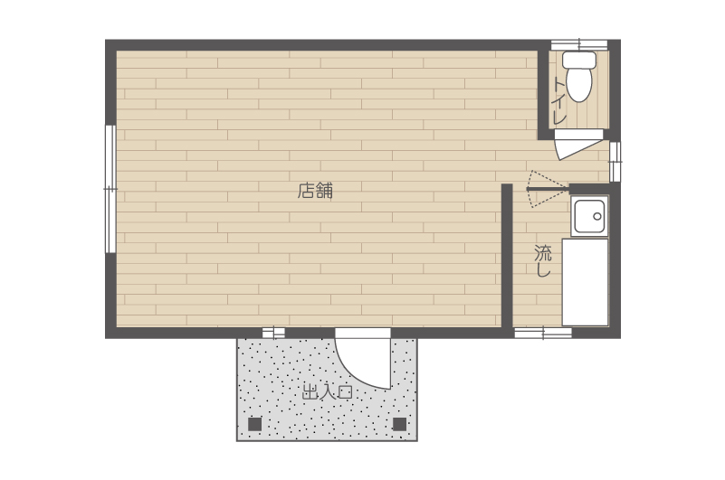
- 間取
- 1R
- 共益費・管理費
- 2,200円
- 定期借家契約
- 2年
- 敷金
- 3ヶ月
- 仲介手数料
- 1ヶ月
- 礼金
- 1ヶ月
-
- 所在地
- 鹿児島県熊毛郡屋久島町小瀬田
- 交通
- バス 徒歩1分(早崎バス停)
空港より車で3分
物件詳細
| 築年月 | 2011/01 | 新築/中古 | 中古 |
|---|---|---|---|
| 建物面積 | 25.9m² | 建物面積(坪) | 7.84坪 |
| バルコニー・ベランダ | 有 | 建物・部屋向き | 北西 |
| 建物階数 | 地上1階 | 部屋階数 | |
| 建物構造 | 木造/スレート瓦葺き | ||
| 敷地全体面積 | 298m² | 敷地全体面積(坪) | 90坪 |
| 間取内容 | 間取図参照 | ||
| 保険・金銭面・修繕費備考 | 退去時エアコン2台のクリーニング代25300円(借主負担)ただし業者が値上がりした場合は実費をお支払いいただきます | ||
| 駐車場 | 無料 | 取引態様 | 仲介 |
| 引渡/入居時期 | 相談 | 現況 | 入居中 |
| 地目 | 山林 | 用途地域 | 無指定 |
| 都市計画 | 都市計画区域外 | 地勢 | 平坦 |
| 接道状況 | 一方 | ||
| 接道方向1 | 北東 | 接道間口1 | 14m |
| 接道種別1 | 公道 | 接道幅員1 | 私道1m+公道3.5m |
| 土地権利 | 所有権 | 国土法届出 | 不要 |
| 周辺環境 |
小瀬田小学校 中央中学校 周辺には空港、ホームセンター、ドラッグストアがある。 名所マップを開く |
||
| 設備・条件 | 電気 プロパンガス 水道 浄化槽 排水 ペット不可 温水洗浄便座 エアコン バルコニー・ベランダ | ||
| 物件番号 | KS-210035 | ||
| 自社物 | 状態 | 空無 | |
※物件掲載内容と現況に相違がある場合は現況を優先といたします。※こちらの物件の資料請求はページ下段のフォームよりお問い合せ下さい。
お電話からのお問い合わせ
営業時間 9:00~17:00 定休日: 日曜・祭日
宅地建物取引業者免許
:国土交通大臣(8)第4409号
:国土交通大臣(8)第4409号
賃貸住宅管理業者登録
:国土交通大臣(1)第7584号
:国土交通大臣(1)第7584号














