宮之浦周辺地図






























- 価格
- 1,800万円
- 種別
- 売店舗
- 間取
- 3LDK
- 坪単価
- 15.8674万円
-
- 所在地
- 鹿児島県熊毛郡屋久島町宮之浦
- 交通
- バス 徒歩1分(宮浦小前バス停)
空港より車で15分
物件詳細
| 築年月 | 1989年4月6日新築 1999年8月10日増築 | 新築/中古 | 中古 |
|---|---|---|---|
| 建物面積 | 254.77m² | 建物面積(坪) | 77.06坪 |
| バルコニー・ベランダ | 無 | 建物・部屋向き | 北西 |
| 建物階数 | 地上2階 | 部屋階数 | |
| 建物構造 | 建物備考参照 | ||
| 敷地全体面積 | 375.04m² | 敷地全体面積(坪) | 113.44坪 |
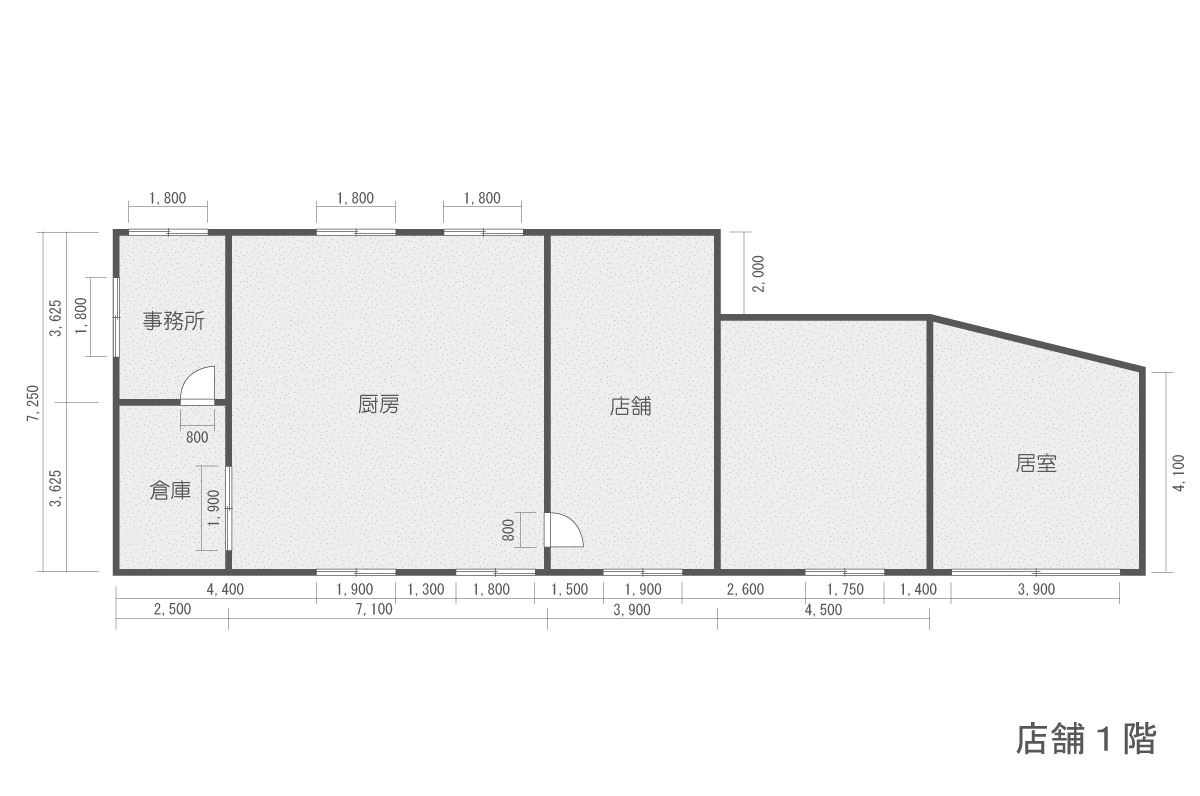
| 建物備考 | 鉄骨造スレート葺き2階建て 1階150.52 ㎡ 2階104.25㎡ 合計254.77㎡/77.06坪 登記簿上の種類は店舗、倉庫、居宅ですが風呂場はありません。 |
||
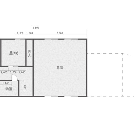
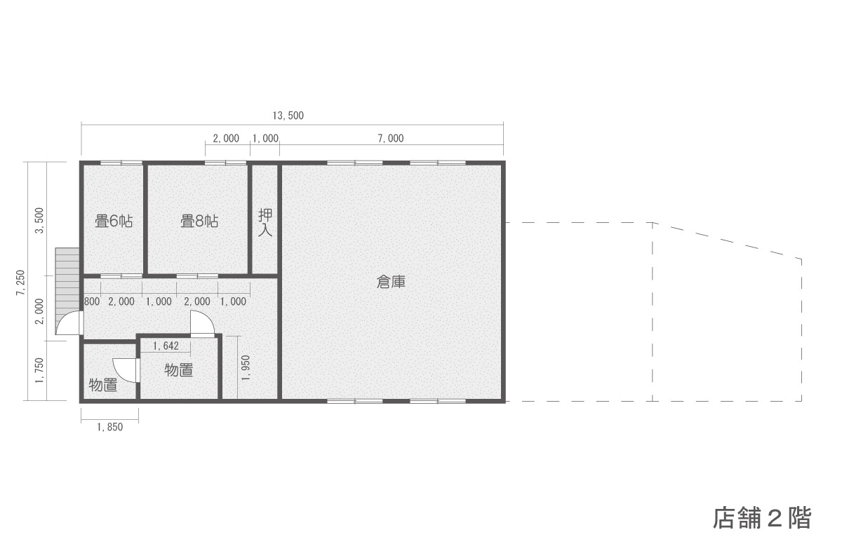
| 間取内容 | 間取図参照 | ||
| 間取備考 | 二階へ上がる外階段は取り外したためありません。ひさしも取り外しています。 店舗は1LDK、倉庫1R、二階の居宅は間取り不明 |
||
| 駐車場 | 有 | 取引態様 | 媒介 |
| 引渡/入居時期 | 相談 | 現況 | 空家 |
| 地目 | 宅地 | 用途地域 | 無指定 |
| 都市計画 | 非線引き区域 | 地勢 | 平坦 |
| 接道状況 | 角地 | ||
| 接道方向1 | 北西 | 接道間口1 | 25.7m |
| 接道種別1 | 舗装公道 | 接道幅員1 | 13~14.5m |
| 接道方向2 | 南西 | 接道間口2 | 5.7m |
| 接道種別2 | 未舗装公道 | 接道幅員2 | 3.5m |
| 土地権利 | 所有権 | 国土法届出 | 不要 |
| 周辺環境 |
宮浦小学校 中央中学校 周辺には銀行、商店、河、港がある。 名所マップを開く |
||
| 設備・条件 | 電気 水道 排水 厨房設備付き トイレは簡易水洗 |
||
| 物件番号 | MY-250016 | ||
| 自社物 | 状態 | 売出中 | |
| 特記事項 | 土砂災害警戒区域内です。 | ||
※物件掲載内容と現況に相違がある場合は現況を優先といたします。※こちらの物件の資料請求はページ下段のフォームよりお問い合せ下さい。
お電話からのお問い合わせ
営業時間 9:00~17:00 定休日: 日曜・祭日
宅地建物取引業者免許
:国土交通大臣(8)第4409号
:国土交通大臣(8)第4409号
賃貸住宅管理業者登録
:国土交通大臣(1)第7584号
:国土交通大臣(1)第7584号





























