麦生周辺地図












- 賃料
- 5.5万円
- 種別
- 賃貸戸建
- 間取
- 1R
- 共益費・管理費
- 2,500円
- 定期借家契約
- 2年
- 敷金
- 3ヶ月
- 仲介手数料
- 1ヶ月
- 礼金
- 1ヶ月
-
- 所在地
- 鹿児島県熊毛郡屋久島町麦生
- 交通
- バス 徒歩4分(ホトー川バス停)
空港より車20分
物件詳細
| 築年月 | 2014/06 | 新築/中古 | 中古 |
|---|---|---|---|
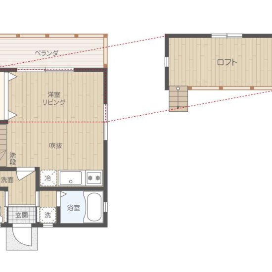
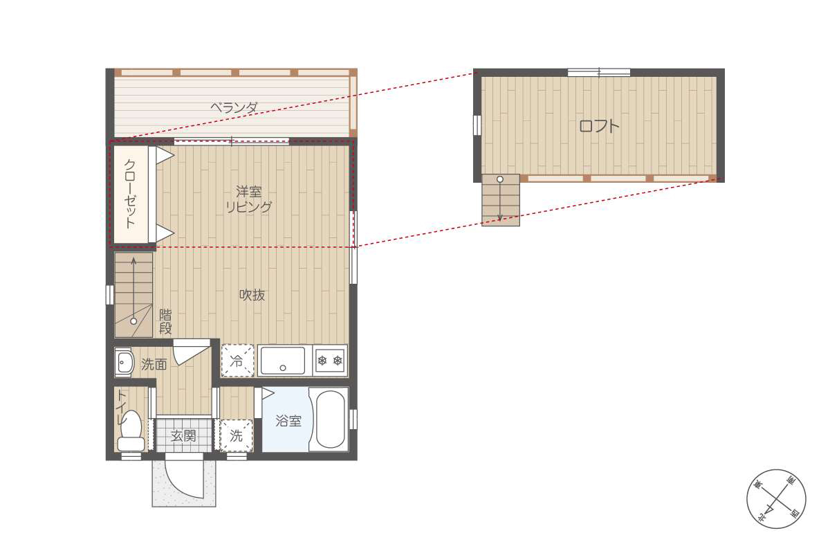
| 建物面積 | 27.4m² | 建物面積(坪) | 8.28坪 |
| バルコニー・ベランダ | 5.98㎡/1.8坪 | 建物・部屋向き | 南 |
| 建物階数 | 地上1階 | 部屋階数 | 1階 |
| 部屋/区画番号 | 総戸/区画数 | 1 | |
| 建物構造 | 木造 | ||
| 建物備考 | 27.4㎡+ロフト9.2㎡ 合計36.6㎡/11.07坪 | ||
| 間取内容 | 間取図参照 | ||
| 住宅保険 | 有 | ||
| 間取備考 | ロフト9.2㎡ | ||
| 保険・金銭面・修繕費備考 | 入居時預りハウスクリーニング代65000円+税(借主負担) | ||
| 駐車場 | 有 1台 | 取引態様 | 仲介 |
| 引渡/入居時期 | 現況 | ||
| 周辺環境 |
神山小学校 岳南中学校 周辺にはレストラン、民宿あり 名所マップを開く |
||
| 設備・条件 | 電気 プロパンガス 水道 排水 ペット不可 ユニットバス バス・トイレ別 温水洗浄便座 ロフト付き BSアンテナ 駐車場有 フローリング 電気自動車用コンセント 室内敷地内禁煙 |
||
| 物件番号 | MG-140006 | ||
| 自社物 | 状態 | 空無 | |
※物件掲載内容と現況に相違がある場合は現況を優先といたします。※こちらの物件の資料請求はページ下段のフォームよりお問い合せ下さい。
お電話からのお問い合わせ
営業時間 9:00~17:00 定休日: 日曜・祭日
宅地建物取引業者免許
:国土交通大臣(8)第4409号
:国土交通大臣(8)第4409号
賃貸住宅管理業者登録
:国土交通大臣(1)第7584号
:国土交通大臣(1)第7584号











